A truly rare and exciting opportunity has arisen to acquire this distinctive three-bedroom mid-terraced property, ideally situated in the very heart of the charming and highly sought-after village of Kilbarchan.
This unique offering presents a blank canvas for developers, investors, or ambitious homeowners looking to create a bespoke residence tailored to their exact specifications. Currently in shell condition, the property provides the perfect foundation for a complete transformation, allowing full creative freedom in design, layout, and finish.
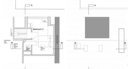
Importantly, the property benefits from full planning permission to be converted into an impressive three-level home, thoughtfully designed to accommodate three well-proportioned bedrooms, including a desirable principal bedroom with en-suite facilities. The approved plans maximise both space and functionality, offering the potential to create a stylish and contemporary living environment while retaining the character expected within this historic village setting.
Once completed, the property has the potential to deliver substantial value, whether as a high-quality family home, a lucrative resale project, or an attractive rental investment. The three-level configuration allows for flexible living arrangements, with ample scope for open-plan living areas, modern kitchen and bathroom installations, and carefully considered storage solutions throughout.
Kilbarchan itself is renowned for its picturesque surroundings, strong sense of community, and convenient access to local amenities, transport links, and nearby towns, making it an increasingly popular location for buyers seeking both charm and connectivity.
Opportunities of this nature are seldom available, particularly with planning permission already secured.
Council Tax
Renfrewshire Council, Band D
Notice
Please note we have not tested any apparatus, fixtures, fittings, or services. Interested parties must undertake their own investigation into the working order of these items. All measurements are approximate and photographs provided for guidance only.
| Utility |
Supply Type |
| Electric |
Unknown |
| Gas |
Unknown |
| Water |
Unknown |
| Sewerage |
Unknown |
| Broadband |
Unknown |
| Telephone |
Unknown |
| Other Items |
Description |
| Heating |
Not Specified |
| Garden/Outside Space |
No |
| Parking |
No |
| Garage |
No |
| Broadband Coverage |
Highest Available Download Speed |
Highest Available Upload Speed |
| Standard |
Unknown |
Unknown |
| Superfast |
Unknown |
Unknown |
| Ultrafast |
Unknown |
Unknown |
| Mobile Coverage |
Indoor Voice |
Indoor Data |
Outdoor Voice |
Outdoor Data |
| EE |
Unknown |
Unknown |
Unknown |
Unknown |
| Three |
Unknown |
Unknown |
Unknown |
Unknown |
| O2 |
Unknown |
Unknown |
Unknown |
Unknown |
| Vodafone |
Unknown |
Unknown |
Unknown |
Unknown |
Broadband and Mobile coverage information supplied by Ofcom.