Situated in the well-regarded Fairhaven complex in Kirn, Dunoon, this bright and spacious two-bedroom maisonette offers comfortable living across two levels. The property benefits from its own private main door entrance at the front, providing a sense of independence and ease of access.
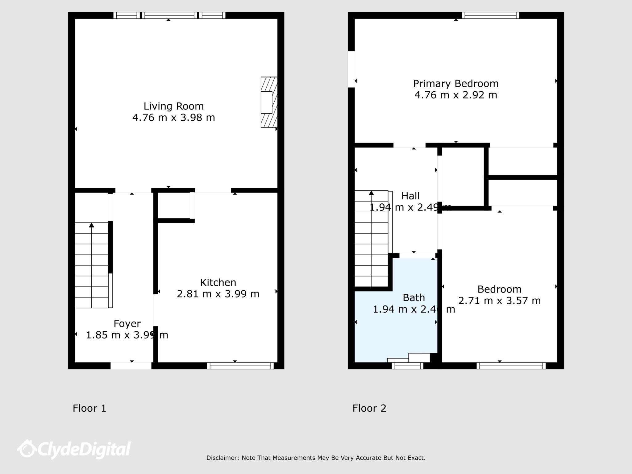
On entering the property, you are welcomed into a hallway which leads into a generously sized sitting room an ideal space for relaxing or entertaining. The adjacent kitchen is fitted with a range of wall and base units and offers space for appliances, with plumbing and electrical connections in place for a washing machine.
The upper floor comprises two well-proportioned double bedrooms. The main bedroom includes a built-in wardrobe, while the second bedroom features a large walk-in cupboard. Additional storage is available on the upper landing, with two large cupboards providing ample space for household items.
The bathroom is fitted with a walk-in shower and overhead unit, creating a practical and accessible space.
Outside, the property benefits from access to well-maintained communal gardens, with the grounds, shared areas, and residents' car parks all looked after by the factor. A private, lockable ground-floor outhouse provides excellent storage for bikes or other outdoor equipment.
Located less than a mile from Dunoon town centre, the property is ideally positioned for access to a range of amenities including shops, supermarkets, cafes, restaurants, and bars. The town also offers a hospital, cinema, swimming pool, museum, arts and cultural venues, and a variety of sporting and social clubs.
Dunoon is well connected to the mainland via two regular ferry services from Gourock. The Argyll Ferry provides a passenger-only route with convenient rail links to Glasgow, while Western Ferries offers a frequent vehicle and passenger service throughout the day.
This attractive maisonette represents an excellent opportunity for buyers seeking a well-presented, conveniently located home in a peaceful and popular residential setting on Scotland's stunning west coast.
Council Tax
Ayrshire Council, Band A
Notice
Please note we have not tested any apparatus, fixtures, fittings, or services. Interested parties must undertake their own investigation into the working order of these items. All measurements are approximate and photographs provided for guidance only.
| Utility |
Supply Type |
| Electric |
Unknown |
| Gas |
Unknown |
| Water |
Unknown |
| Sewerage |
Unknown |
| Broadband |
Unknown |
| Telephone |
Unknown |
| Other Items |
Description |
| Heating |
Not Specified |
| Garden/Outside Space |
No |
| Parking |
No |
| Garage |
No |
| Broadband Coverage |
Highest Available Download Speed |
Highest Available Upload Speed |
| Standard |
14 Mbps |
1 Mbps |
| Superfast |
75 Mbps |
20 Mbps |
| Ultrafast |
Not Available |
Not Available |
| Mobile Coverage |
Indoor Voice |
Indoor Data |
Outdoor Voice |
Outdoor Data |
| EE |
Likely |
Likely |
Enhanced |
Enhanced |
| Three |
Likely |
Likely |
Enhanced |
Enhanced |
| O2 |
Likely |
Likely |
Enhanced |
Enhanced |
| Vodafone |
Likely |
No Signal |
Enhanced |
Enhanced |
Broadband and Mobile coverage information supplied by Ofcom.