Unique and rarely available opportunity to acquire a substantial dwelling plot within the highly desirable village of Kilbarchan, Renfrewshire. This exceptional site offers purchasers the chance to create a bespoke family home in a sought-after semi-rural setting, with planning consent already secured for the development of an impressive two-storey, four-bedroom detached villa. Thoughtfully designed to suit modern family living, the proposed accommodation combines generous proportions with a highly practical layout.
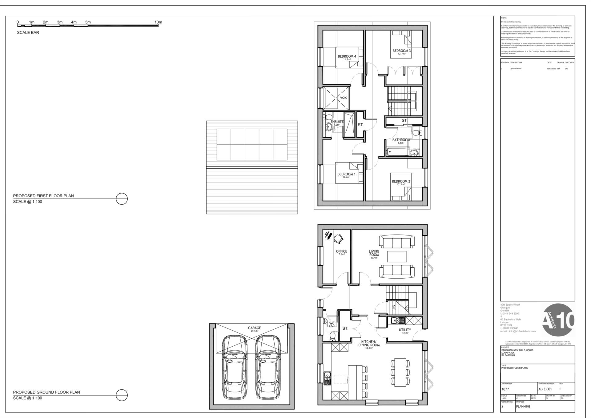
The ground floor is designed to maximise both space and natural light, featuring a welcoming entrance hallway with WC, an expansive open-plan kitchen/dining area with contemporary bifold doors opening directly onto the garden ideal for indoor/outdoor entertaining a separate, well-proportioned lounge, a dedicated home office/study, and a useful utility room. The upper level offers a luxurious principal bedroom complete with en-suite shower room, alongside three further spacious double bedrooms and a stylish family bathroom, providing ample accommodation for growing families.
Outline planning consent was granted on 18/02/2026, and the site is fully prepared for immediate development, allowing buyers to progress swiftly with their build. The current consent permits the erection of a two-storey detached dwelling (Planning Reference No. 24/0471/PP), presenting both a strong foundation and flexibility for purchasers wishing to tailor the final design to their own specifications, subject to the relevant approvals. Full planning documentation, drawings, and supporting information are available upon request from the selling agents.
Kilbarchan itself is a picturesque and historic conservation village, widely admired for its character, charm, and strong sense of community. The area boasts a selection of local amenities including independent shops, cafés, and well-regarded primary schooling, making it particularly attractive to families. For commuters, the location is exceptionally convenient, with easy access to the M8 motorway network and nearby rail links offering swift connections to Paisley, Glasgow, and beyond.
Surrounded by beautiful Renfrewshire countryside, the village provides a wealth of outdoor pursuits, from scenic walking routes and cycling trails to nearby parks and green spaces. This combination of tranquil village living and excellent connectivity makes Kilbarchan one of the most desirable residential locations in the area.
This is an outstanding opportunity for developers, self-builders, or families looking to create a high-quality home in a prime location, with the significant advantage of planning already in place.
Business Rates
Inverclyde Council
Notice
Please note we have not tested any apparatus, fixtures, fittings, or services. Interested parties must undertake their own investigation into the working order of these items. All measurements are approximate and photographs provided for guidance only.
| Utility |
Supply Type |
| Electric |
Unknown |
| Gas |
Unknown |
| Water |
Unknown |
| Sewerage |
Unknown |
| Broadband |
Unknown |
| Telephone |
Unknown |
| Other Items |
Description |
| Heating |
Not Specified |
| Garden/Outside Space |
No |
| Parking |
No |
| Garage |
No |
| Broadband Coverage |
Highest Available Download Speed |
Highest Available Upload Speed |
| Standard |
Unknown |
Unknown |
| Superfast |
Unknown |
Unknown |
| Ultrafast |
Unknown |
Unknown |
| Mobile Coverage |
Indoor Voice |
Indoor Data |
Outdoor Voice |
Outdoor Data |
| EE |
Unknown |
Unknown |
Unknown |
Unknown |
| Three |
Unknown |
Unknown |
Unknown |
Unknown |
| O2 |
Unknown |
Unknown |
Unknown |
Unknown |
| Vodafone |
Unknown |
Unknown |
Unknown |
Unknown |
Broadband and Mobile coverage information supplied by Ofcom.